29x50 Feet House Plan 2D AutoCAD Drawing 3D model
Home Catalog 29x50 Feet House Plan 2D AutoCAD Drawing 3D model

Publication date: 2025-08-08

Buy 29x50 Feet House Plan 2D AutoCAD Drawing 3D model

$2

License: Royalty Free

author:

ajeetsuryawanshi111

All content related to this 3D asset—including renders, descriptions, and metadata — is credited to its original author, «ajeetsuryawanshi111». CGhub does not claim copyright ownership over the content used.
  • Description
  • Formats

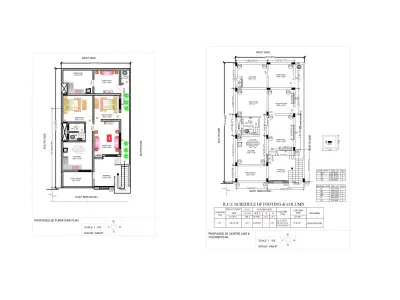
Plot Size: 29 x 50 feet (8.84 x 15.24 meters)Total Area: 1450 sq.ft.Drawing Type: 2D AutoCAD Plan (.dwg)Rooms: 2 Bedrooms, Hall, Kitchen, Bathroom, ToiletScale: 1:100Plan is Vastu Compliant and suitable for small urban plots.

DWG (AutoCAD, filesize: 295 KB)

3D Model details

  • cgtrader Platform
  • Animated
  • Rigged
  • Ready for 3D Printing
  • VR / AR / Low-poly
  • PBR
  • Textures
  • Materials
  • UV Mapping
  • Polygons: 0
  • Vertices: 0
  • Geometry: Polygon mesh
Similar models