Commercial Interior Sketch - 64001-78000 SF - Xactimate 3D model
Home Catalog Commercial Interior Sketch - 64001-78000 SF - Xactimate 3D model

Publication date: 2025-08-01

Commercial Interior Sketch - 64001-78000 SF - Xactimate 3D model

$820

License: Royalty Free No Ai License

author:

az-estimator

All content related to this 3D asset—including renders, descriptions, and metadata — is credited to its original author, «az-estimator». CGhub does not claim copyright ownership over the content used.
  • Description
  • Formats
Description

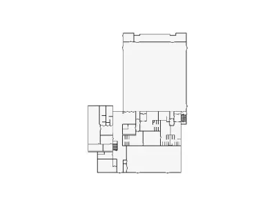
Detailed commercial interior sketch for Xactimate (64001-78000 SF). Accurate layouts for damage assessment, insurance claims, and restoration projects.

  • Matterport
  • Architectural plans
  • DocuSketch
  • Hand sketch
  • Photos
  • And also other sources

Package included next settings for sketches:

  • Settings - Ceilings (also non-standard)
  • Settings - Doors
  • Settings - Windows
  • Settings - Openings
  • Settings - Kitchens (cabinets, sinks, refrigerators, stoves, etc.)
  • Settings - Baths (toilets, bathtubs, showers, vanity)

To start work I need (Depending on which resource you need the sketch from)

Link to sourse (Matterport, DocuSketch or another sources)DropboxOr other sources

Upon completion of the work, I provide you with:

  • ESX file

Please provide your email address to send files.

  • Other 9.79 KB

3D Model details

  • cgtrader Platform
  • Animated
  • Rigged
  • Ready for 3D Printing
  • VR / AR / Low-poly
  • PBR
  • Textures
  • Materials
  • UV Mapping
  • Unwrapped UVs: Unknown
  • Geometry: -
  • Polygons: Unknown
  • Vertices: 0