Detailed Exterior Sketch by Interior - 1501-2000 SF - Xactimate 3D model
Home Catalog Detailed Exterior Sketch by Interior - 1501-2000 SF - Xactimate 3D model

Publication date: 2025-08-01

Buy Detailed Exterior Sketch by Interior - 1501-2000 SF - Xactimate 3D model

$20

License: Royalty Free No Ai

author:

az-estimator

All content related to this 3D asset—including renders, descriptions, and metadata — is credited to its original author, «az-estimator». CGhub does not claim copyright ownership over the content used.
  • Description
  • Formats

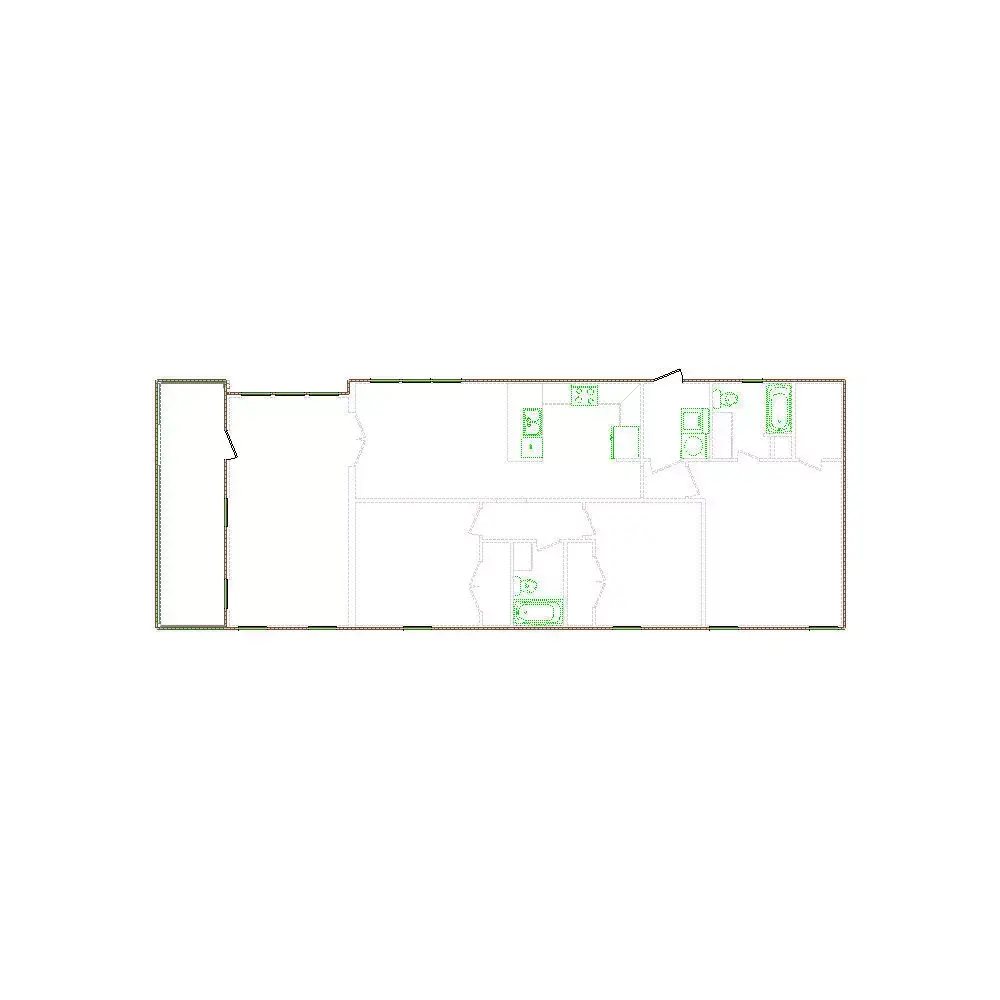
Detailed exterior sketch (1501-2000 SF) based on interior layout provided by the client or created by us. Suitable for siding, paint, and wall estimates.

Creation of roof sketches for buildings based on:

  • Aerial
  • Architectural plans
  • Based on interior
  • And also other sources

To start work I need (Depending on which resource you need the sketch from)

  • Property address
  • EagleView
  • Hover
  • Another recourse

Upon completion of the work, I provide you with:

  • ESX file

Please provide your email address to send files.

OTHER (Other, filesize: 9.79 KB)

3D Model details

  • cgtrader Platform
  • Animated
  • Rigged
  • Ready for 3D Printing
  • VR / AR / Low-poly
  • PBR
  • Textures
  • Materials
  • UV Mapping
  • Polygons: 0
  • Vertices: 0
  • Geometry: Unknown