Simple Interior Sketch - 4001-4500 SF - Xactimate - Matterport 3D model
Home Catalog Simple Interior Sketch - 4001-4500 SF - Xactimate - Matterport 3D model

Publication date: 2025-08-01

Buy Simple Interior Sketch - 4001-4500 SF - Xactimate - Matterport 3D model

$110

License: Royalty Free No Ai

author:

az-estimator

All content related to this 3D asset—including renders, descriptions, and metadata — is credited to its original author, «az-estimator». CGhub does not claim copyright ownership over the content used.
  • Description
  • Formats

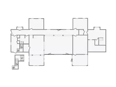
Simple interior sketch for Xactimate (4001-4500 SF). Perfect for partial renovations, such as updating floors, walls, or ceilings, without full detailing.

  • Matterport
  • DocuSketch
  • Architectural plans
  • Hand sketch
  • Previous xactimate sketches
  • CAD-files
  • Photos (with using address)
  • Other sources

Free preliminary calculation by request

  • Turnaround time
  • Object area (if you are not sure about the total area)

Package included next settings for sketches:

  • Settings - Ceilings (standard and non-standard designs)
  • Settings - Doors, Windows, Openings (customized dimensions, types and placement)
  • Settings - Kitchens (including cabinets, sinks, refrigerators, stoves, and other appliances)
  • Settings - Baths (toilets, bathtubs, showers, vanities, and other bathroom fixtures)
  • Settings - Other areas in the house (living rooms, bedrooms, hallways, etc.)
  • Deduct - Doors and Windows (adjustment based on specific needs)

Upon completion of the work, I provide you with:

  • ESX file
OTHER (Other, filesize: 9.79 KB)

3D Model details

  • cgtrader Platform
  • Animated
  • Rigged
  • Ready for 3D Printing
  • VR / AR / Low-poly
  • PBR
  • Textures
  • Materials
  • UV Mapping
  • Polygons: 0
  • Vertices: 0
  • Geometry: Unknown
Similar models